Doležalová Radka
POPIS
Prodej pozemku v Psárech, jižní svah, stará zástavba, klidná ulice. Nabízíme prodej stavebního pozemku s projektem v obci Psáry, KÚ Dolní Jirčany.
Pozemek o výměře 1017 m2 má příjemnou jižní orientaci v mírném svahu. K pozemku vede asfaltová obecní cesta, je ze tří stran oplocen. Sítě je možné připojit na jižní hranici pozemku.
Nachází se ve starší zástavbě rodinných domů v klidné ulici Ke Kukaláku. Na lokalitu bezprostředně navazuje les Štědřík.
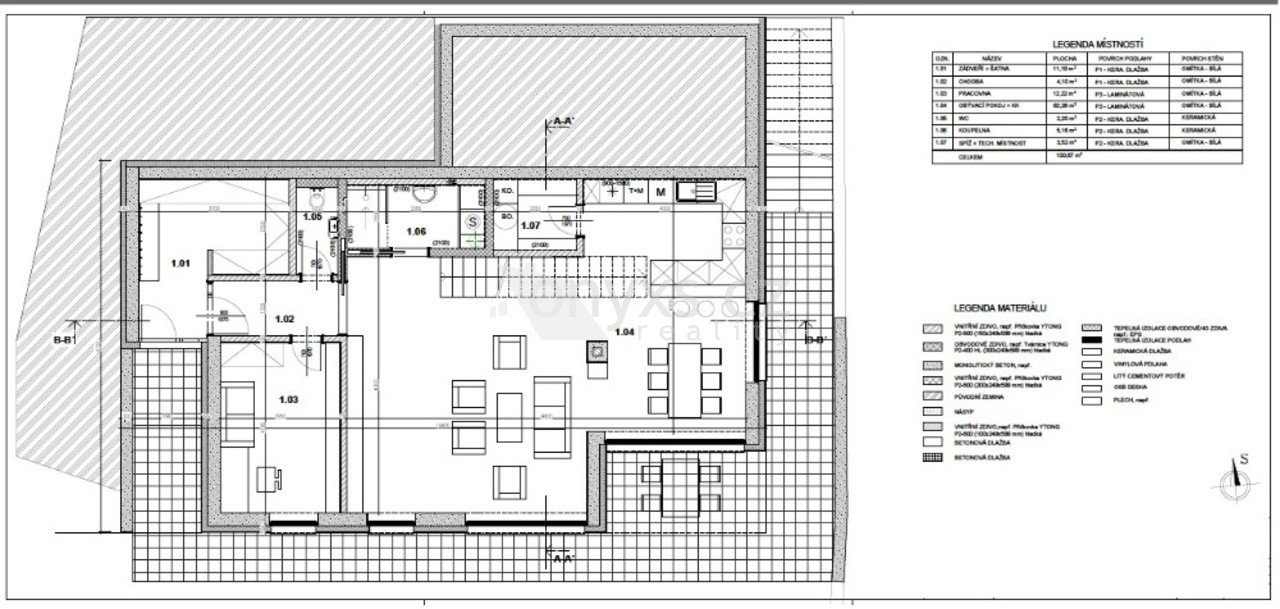
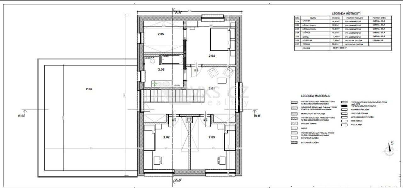
Na pozemek je vyprojektovaný rodinný dům, bližší informace zašleme e-mailem, projekt je součástí prodeje. Dům si samozřejmě můžete postavit i podle svého projektu.
Dle ÚP je zde možné bydlení městského typu nízkopodlažní, zastavěná plocha RD nepřesáhne 300 m2, mají nejvýše dva samostatné byty, nejvýše dvě nadzemní podlaží a podkroví, se střechou o sklonu nejméně 25%. Maximální výška staveb 8 m nad okolním terénem.
Lokalita Psár nabízí základní občanskou vybavenost, je zde také pošta, škola, školka, kromě přírody a lesů nabízí také možnost dobrého dojezdu do Prahy, autem cca 20 min po pražském okruhu, autobusem 332 nebo 334 (do Jesenice a na metro Smíchovské nádraží).
Při kontaktu s RK, prosím, využívejte e-mailové poptávky, ozveme se vám co nejdříve. V případě zájmu vám na e-mail můžeme zaslat odkaz videoprohlídky, napište si o ně.
Pozemek o výměře 1017 m2 má příjemnou jižní orientaci v mírném svahu. K pozemku vede asfaltová obecní cesta, je ze tří stran oplocen. Sítě je možné připojit na jižní hranici pozemku.
Nachází se ve starší zástavbě rodinných domů v klidné ulici Ke Kukaláku. Na lokalitu bezprostředně navazuje les Štědřík.
Na pozemek je vyprojektovaný rodinný dům, bližší informace zašleme e-mailem, projekt je součástí prodeje. Dům si samozřejmě můžete postavit i podle svého projektu.
Dle ÚP je zde možné bydlení městského typu nízkopodlažní, zastavěná plocha RD nepřesáhne 300 m2, mají nejvýše dva samostatné byty, nejvýše dvě nadzemní podlaží a podkroví, se střechou o sklonu nejméně 25%. Maximální výška staveb 8 m nad okolním terénem.
Lokalita Psár nabízí základní občanskou vybavenost, je zde také pošta, škola, školka, kromě přírody a lesů nabízí také možnost dobrého dojezdu do Prahy, autem cca 20 min po pražském okruhu, autobusem 332 nebo 334 (do Jesenice a na metro Smíchovské nádraží).
Při kontaktu s RK, prosím, využívejte e-mailové poptávky, ozveme se vám co nejdříve. V případě zájmu vám na e-mail můžeme zaslat odkaz videoprohlídky, napište si o ně.
OBČANSKÁ VYBAVENOST
| Autobus | Ano |
| MHD | Ano |
| Pošta | Ano |
| Obchody | Ano |