ZpětÚvodNemovitosti PrahaByty PrahaPronájem byty PrahaPronájem byty 2+kk PrahaPronájem bytu 2+kk/T,G Praha 4 Belárie Modřany
Pronájem bytu 2+kk/T,G Praha 4 Belárie Modřany
Záložky
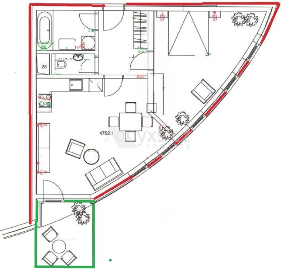
Pronájem bytu 2+kk/T,G Praha 4 Belárie Modřany, částečně zařízený byt v novostavbě u Vltavy.
Popis nemovitosti
Klidné bydlení s bezstarostným parkováním vám přináší tento byt s příjemnou terasou v projektu Belárie Modřany.
Nabízíme pronájem bytu s terasou a garáží v novostavbě Belárie Modřany. Byt 2+kk s balkonem do klidného vnitrobloku je velký 60 m2, k tomu navíc balkon 7,3 m2 orientovaný do vnitrobl...
| Cena: | 23.900 Kč(za měsíc)+ poplatky cca 4000 Kč, elektřina dle spotřeby |
|---|---|
| Lokalita: | Modřany, Praha, Hlavní město Praha |
| Stav nabídky: | aktuální |
| Číslo: | 4103 |
| Typ reality: | Byty 2+kk - Byty |
| Plocha: | 60 m2 |
Kontakt na makléře
Vlastnosti nemovitosti
| Technologie výstavby: | cihlová |
|---|---|
| Stav objektu: | novostavba |
| Umístění objektu: | klidná část obce |
| Celkový počet podlaží: | 8 |
| Číslo podlaží v domě: | 7 |
| Počet parkovacích míst: | 1 |
| Vlastnictví: | osobní |
| Bezbariérový přístup: | Ano |
|---|---|
| Balkón: | Ano |
| Výtah: | Ano |
| Sklep: | Ano |
| Garáž: | Ano |
| Plocha balkón: | 7 m2 |
|---|---|
| Plocha sklep: | 4 m2 |
| Užitná plocha: | 71 m2 |
© 2025, ONYXS CZ – všechna práva vyhrazena
Prohlášení o přístupnosti | Ochrana osobních údajů | Mapa stránek
Realitní software dodává eBRÁNA | Software a informační systém pro realitní kanceláře REAlBrána | Nabídka nemovitostí RB Reality































